arrow-left Återgå till fastighetslistan
Återgå till fastighetslistan

Hög bungalow till salu

Från 269.900 €


San Miguel de Salinas
Referens GH-693104
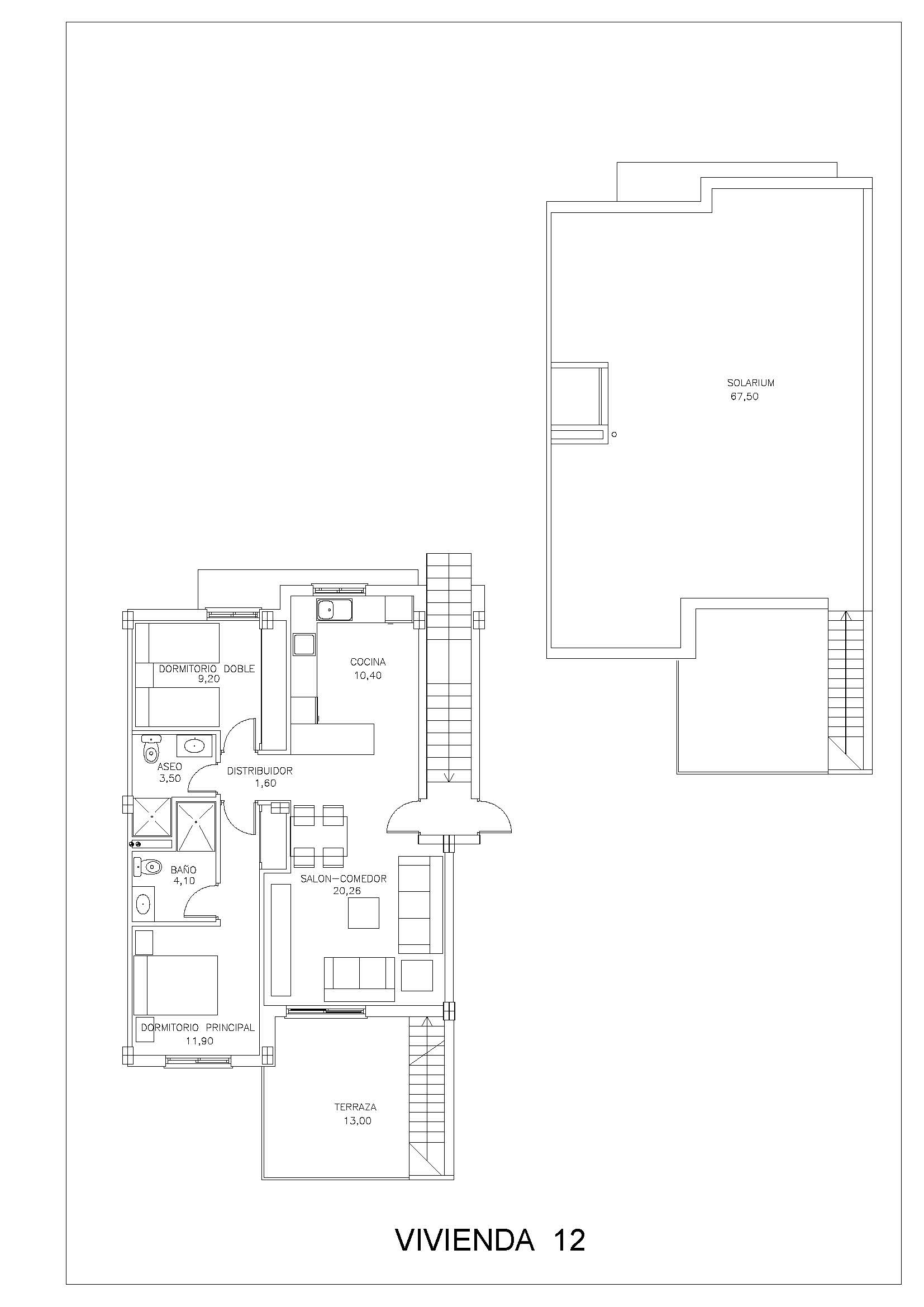
2 Sovrum
2 Badrum
73.5 m2 byggda
september 2026 Leveransdatum
Fastighetsbeskrivning Beläget i San Miguel de Salinas, i området "La Cañada", omgivet av en vacker skyddad pinjeskog mellan golfbanorna Campoamor och Las Colinas, cirka 5 km från kusten. Detta bostadsområde erbjuder rymliga och bekväma bostäder, tillgängliga på bottenvåningen och övervåningen, med möjlighet till tre sovrum. Det är en idealisk miljö för att njuta av solen året runt i en lugn och familjär atmosfär.

Bostäderna på bottenvåningen har två stora privata trädgårdar, medan de på övervåningen har en stor solterrass och havsutsikt. Bostadsområdet har en stor gräsmatta på cirka 1 735 m² med olika typer av trädgårdsanläggningar, palmer och växter, samt en pool med jacuzzi och en lekplats. Parkeringsplatserna är på marknivå.

Bostäderna har två sovrum och två badrum, med generösa mått som gör det möjligt att utöka till tre sovrum om så önskas. Planlösningen och designen är utformade för att erbjuda komfort och funktionalitet i en ljus och rymlig miljö.

Det har stora trädgårdsområden, pool med jacuzzi och barnområde, vilket skapar en familjär och säker miljö för boende att njuta av. Kombinationen av natur, fritidsaktiviteter och närhet till golfbanor gör bostadsområdet till en idealisk plats att bo eller semestra på året runt.

San Miguel de Salinas, som ligger i provinsen Alicante, är en lugn bergsby med panoramautsikt över den omgivande landsbygden. Även om det inte är ett mass turistmål, ligger dess charm i dess lantliga atmosfär och dess närhet till populära kustområden. Turismen i San Miguel de Salinas fokuserar på dess naturliga miljö, idealisk för vandring och utomhusaktiviteter, med panoramautsikt över Medelhavskusten och Laguna Salada de Torrevieja. Livsstilen i San Miguel de Salinas är lugn och rotad i landsbygdslivet. Invånarna värdesätter lugn, gemensamt boende och lokala traditioner. Gastronomin är baserad på typiska medelhavsrätter och lokala råvaror. San Miguel de Salinas erbjuder en lugn och lantlig atmosfär för dem som söker ett lugnt liv i en naturlig miljö, med enkel tillgång till turistmål vid kusten på Costa Blanca.

Egenskaper

  • Platsbyggda garderober
  • fitted_wardrobes
  • Porslinsgolv
  • covered_terrace
  • air_conditioning
  • Termisk isolering
  • Parkering
  • One or more parking spaces: 1
  • climate_control: preinstallation_by_duct
  • panoramic
  • building_excellent
  • kitchen fully_fitted
  • kitchen: peninsula
  • kitchen: 1
  • secure_door
  • video_intercom
  • Varmvattenberedare
  • solarium

distance

-
55 km
5.7 km
3.7 km

property contact us

+34 604 225 709

Planer

Video

Ort

dokument av intresse

availability - price list

this list is subject to change and is non-contractual.

typology #number Rum Badrum byggda Tomt Pris Planer Länk
693093 2 2 75.97 m² - 256.000 €
link
693094 2 2 73.5 m² - 269.900 €
link
693095 2 2 75.97 m² - 239.900 €
link
693096 2 2 73.5 m² - 269.900 €
link
693097 2 2 75.97 m² - 239.900 €
link
693098 2 2 73.5 m² - 269.900 €
link
693099 2 2 75.97 m² - 239.900 €
link
693100 2 2 73.5 m² - 269.900 €
link
693101 2 2 75.97 m² - 239.900 €
link
693102 2 2 73.5 m² - 269.900 €
link
693103 2 2 75.97 m² - 239.900 €
link
693105 2 2 75.97 m² - 239.900 €
link
693106 2 2 73.5 m² - 269.900 €
link
693107 2 2 75.97 m² - 239.900 €
link
693108 2 2 73.5 m² - 269.900 €
link
rows per page.
10
10
20
50

Beräkna bolån

Beräkna bolån

30

! Du måste täcka det lägsta bidrag som bankerna kräver. Mer information här.


skatter och utgifter :
lånebelopp :
din månatliga betalning :

Dessa resultat är vägledande och beräknade med de siffror du har angett. Allmänna villkor.

Liknande fastigheter

virtual tour mobile
Se fler fastigheter

Fastighetsquiz

Gör vårt quiz, så får du en lista med fastigheter som matchar dina sökkriterier skickad till din e-post.

1 Vilken typ av fastighet letar du efter i Spanien?

Denna fråga är obligatorisk*
Vänligen välj minst ett alternativ.

2 Vilket skick vill du att fastigheten ska vara i?:*

Välj så många du vill
Vänligen välj minst ett alternativ.

3 Vilka är de viktigaste kraven?*

Du kan välja så många alternativ du vill, men tänk på att ju fler du väljer, desto mer begränsad blir din sökning..

Vänligen välj minst ett alternativ.

4 Antal rum:*

Vänligen välj minst ett alternativ.

5 Vad är syftet med köpet?*

Flera svar möjliga. Välj så många du vill::

Välj så många du vill
Vänligen välj minst ett alternativ.

6 Vad är din budget?*

Välj så många du vill
Vänligen välj minst ett alternativ.

7 Leverans av huset:*

Leverans av huset:*

Välj så många du vill
Vänligen välj minst ett alternativ.

8 I vilket område?*

Välj så många alternativ du vill..

quizimg
Välj så många du vill
Vänligen välj minst ett alternativ.

9 distance to the sea?*

Vänligen välj minst ett alternativ.

10 Behöver du ett bolån?*

please select one

11 is there anything else you would like to share with us about your property search criteria?

12 När planerar du att resa till Spanien?*

Välj så många du vill
Vänligen välj minst ett alternativ.

13 Har du djupgående kunskaper om köpprocessen och de olika stegen vid köp av en fastighet i Spanien?*

Vänligen välj minst ett alternativ.

14 leave us your details what is your name?*

please enter first name
please enter last name

15 and to finish... *

please enter phone number
hmm... that phone number doesn't look right
please fill this in
hmm... that email doesn't look right

16 when would you like to be contacted?*

Välj så många du vill
Vänligen välj minst ett alternativ.
please select recaptcha

thank you! we will send you a list of available properties by email.

www.gestalihome.com
agent img GestaliHome Estate E-mail: [email protected] tel: +34 604 225 709

Utvalda fastigheter

Nybyggda hus i Spanien
Upptäck vår

Guide för inköp

Prenumerera på vårt nyhetsbrev

1