arrow-left Retourner à la liste des propriétés
Retourner à la liste des propriétés

Maison à vendre, Torre Pacheco

À partir de 238.000 €


Torre Pacheco - Murcia
Référence GH-650036
2 Chambres
2 Salles de bains
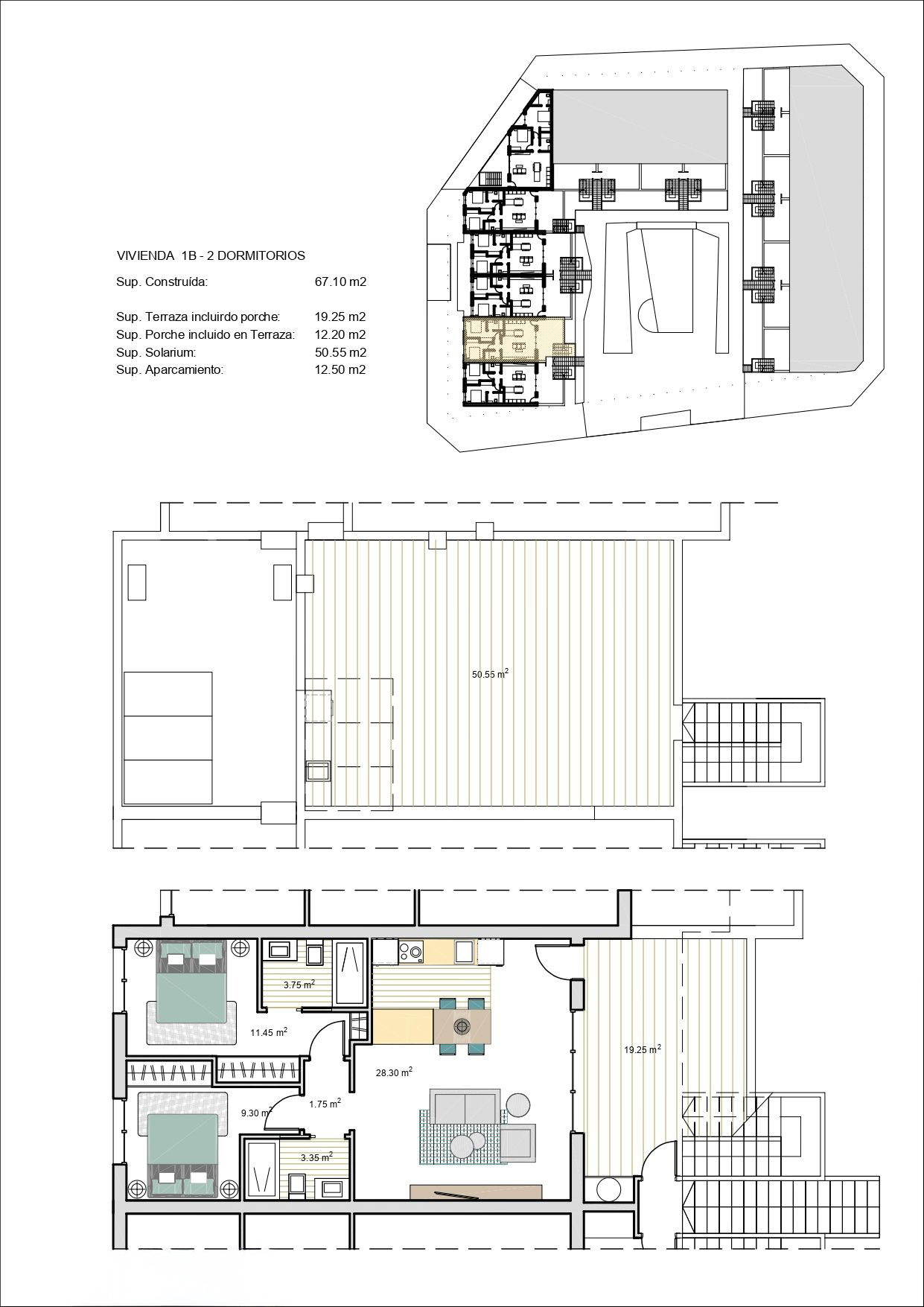
67.1 m2 Construits
septembre 2026 Date de livraison
Description de la propriété Il s'agit d'une nouvelle résidence de luxe avec des appartements au rez-de-chaussée et au dernier étage, en fonction du nombre de chambres, avec une piscine commune et des espaces verts. Chaque appartement dispose de 2 ou 3 chambres et de 2 salles de bains. Les appartements du dernier étage disposent également d'un solarium privé avec cuisine d'été pour profiter du soleil tout au long de l'année. Conçus dans un style contemporain et un concept ouvert, ils comprennent une cuisine entièrement équipée et un salon-salle à manger.

Découvrez une oasis de sérénité dans notre nouveau complexe de luxe. Immergez-vous dans la beauté naturelle qui entoure notre piscine commune et nos espaces verts luxuriants. Les appartements du dernier étage disposent d'un solarium privé, où vous pourrez profiter du soleil toute l'année et vous détendre dans la cuisine d'été. De conception architecturale contemporaine, notre complexe fermé de Roldán (Murcie) garantit votre sécurité et votre tranquillité d'esprit. De plus, la proximité de la plage, des commodités, des parcs et des terrains de golf crée l'environnement parfait pour vivre votre meilleure vie méditerranéenne. Vivez entouré de beauté et de confort dans notre complexe résidentiel exclusif.

Profitez d'un maximum d'élégance et de fonctionnalité dans nos intérieurs. La cuisine, équipée d'un îlot central en bois, d'un four, d'un micro-ondes, d'un réfrigérateur, d'un lave-vaisselle intégré et d'une hotte aspirante, vous offre un espace parfait pour cuisiner. L'éclairage LED dans toute la maison et dans les espaces extérieurs ajoute une touche de modernité. Des placards doublés de tiroirs assurent un rangement organisé. Les salles de bains sont équipées de toilettes suspendues, de cabines de douche et de miroirs éclairés. En outre, une cuisine d'été est installée dans le solarium et l'air conditionné est pré-installé. Une place de parking est incluse et il est possible d'acheter une pièce de stockage.

Torre Pacheco, dans la région de Murcie, se distingue par son atmosphère rurale et sa proximité avec la côte. Bien qu'il ne s'agisse pas d'une destination touristique de masse, son charme réside dans son environnement paisible et son lien avec la nature. Le tourisme à Torre Pacheco est axé sur son environnement rural, idéal pour la randonnée et l'observation des oiseaux dans des zones naturelles telles que le parc régional de Salinas y Arenales de San Pedro del Pinatar. En outre, la proximité de plages telles que la Mar Menor et la mer Méditerranée offre un large éventail d'activités côtières. Le mode de vie à Torre Pacheco est tranquille et enraciné dans la vie rurale. Les habitants apprécient le calme, la vie en communauté et les traditions locales. La gastronomie est basée sur des plats typiques de la région, avec des influences méditerranéennes et des produits locaux. Torre Pacheco offre une atmosphère sereine et rurale à ceux qui recherchent une vie tranquille dans un environnement naturel et authentique, à proximité de la côte méditerranéenne.

Caractéristiques

  • Placards intégrés
  • Prise extérieure
  • Sols en céramique
  • Armoires encastrées
  • Terrasse couverte
  • Éclairage extérieur
  • Climatisation
  • Panneaux solaires photovoltaïques
  • Isolation thermique
  • Parking
  • Une place ou plusieurs places de parking: 1
  • Jardin: interior_garden
  • Cuisine Cuisine: Entièrement équipée
  • Cuisine: peninsula
  • Cuisine: 1
  • Cuisine extérieure
  • Porte sécurisée
  • Interphone vidéo
  • Chauffe-eau
  • Solarium

Distance

-
17.606 km
7.129 km
1328 meters

property contact us

+34 604 225 709

Plans

Zone

documents d'intérêt

availability - price list

this list is subject to change and is non-contractual.

typology #number Salles Bain Construits Terrain Prix Plans Lien
Maison - Bungalow 650032 3 2 80.8 m² - 228.000 €
link
Maison - Bungalow 650033 3 2 80.8 m² - 228.000 €
link
Maison - Bungalow 650034 3 2 80.6 m² - 223.000 €
link
Maison - Bungalow 650037 2 2 67.1 m² - 238.000 €
link
Maison - Bungalow 650038 2 2 67.1 m² - 233.000 €
link
Maison - Bungalow 677492 3 2 80.8 m² - 228.000 €
link
Maison - Bungalow 677493 2 2 67.1 m² - 238.000 €
link
rows per page.
10
10
20
50

Calculer l'hypothèque

Calculer l'hypothèque

30

! Vous devez couvrir la cotisation minimale exigée par les banques. Plus d'informations ici.


impôts et dépenses :
montant du prêt :
votre paiement mensuel :

Ces résultats sont indicatifs, calculés avec les chiffres que vous avez saisis. Conditions générales.

propriétés similaires

virtual tour mobile
Voir plus de propriétés

Quiz

Faites notre quiz et vous recevrez une sélection de biens par mail qui correspondent à vos critères de recherche.

1 Quel type de propriété recherchez-vous en Espagne ?

Cette question est obligatoire*
Veuillez en sélectionner au moins un

2 Dans quel état souhaitez-vous la propriété?:*

Choisissez autant que vous le souhaitez
Veuillez en sélectionner au moins un

3 Quelles sont les exigences essentielles ?*

Vous pouvez en cocher autant que vous le souhaitez, mais gardez à l’esprit que plus vous en sélectionnez, plus votre recherche sera limitée..

Veuillez en sélectionner au moins un

4 Nombre de chambres :*

Veuillez en sélectionner au moins un

5 Quel est le but de l'achat ?*

Plusieurs réponses possibles. Choisissez-en autant que vous le souhaitez:

Choisissez autant que vous le souhaitez
Veuillez en sélectionner au moins un

6 Quel est ton budget?*

Choisissez autant que vous le souhaitez
Veuillez en sélectionner au moins un

7 Livraison de la maison:*

Livraison de la maison:*

Choisissez autant que vous le souhaitez
Veuillez en sélectionner au moins un

8 Dans quelle zone ?*

Sélectionnez autant d'options que vous le souhaitez.

quizimg
Choisissez autant que vous le souhaitez
Veuillez en sélectionner au moins un

9 distance to the sea?*

Veuillez en sélectionner au moins un

10 Aurez-vous besoin d’un prêt hypothécaire ?*

S'il vous plait sélectionner en un

11 Y a-t-il autre chose que vous aimeriez partager avec nous concernant vos critères de recherche de propriété ?

12 Quand comptez-vous voyager en Espagne ?*

Choisissez autant que vous le souhaitez
Veuillez en sélectionner au moins un

13 Avez-vous une connaissance approfondie du processus d'achat et des étapes impliquées dans l'achat d'une propriété en Espagne ?*

Veuillez en sélectionner au moins un

14 Laissez-nous vos coordonnées. Quel est votre nom ?*

please enter first name
please enter last name

15 and to finish... *

please enter phone number
hmm... that phone number doesn't look right
please fill this in
hmm... that email doesn't look right

16 Quand souhaitez-vous être contacté ?*

Choisissez autant que vous le souhaitez
Veuillez en sélectionner au moins un
please select recaptcha

thank you! we will send you a list of available properties by email.

www.gestalihome.com
agent img GestaliHome Estate E-mail: [email protected] Tél: +34 604 225 709

Contactez-nous

Maisons neuves en Espagne
Découvrez notre

Guide d´achat

Abonnez-vous à notre newsletter

1